
![]()

表参道クラシックスペースはオーナー自らピアノやチェロを楽しむ方です。
クラシックを愛する人達にもっと気軽に便利な場所で楽しむスペースを提供したいという思いからの計画です。
紀伊国屋スーパーの隣のビルの3階です。
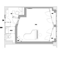
スタンウェイのグランドピアノが常設しており、練習もちょっとしたライブも可能です。
レッスンも行っているようです。
建物には大きな窓がありましたが、ビルオーナーからの遮音性能への要求も高かったため、窓部分には厚いガラスで防音し、その手前を倉庫とすべく壁を設けました。
この壁自体、ピアノや弦楽器などの残響調整の効果を狙っています。
また、壁上部を空けて自然光がはいるように計画しています。
[キーワード] : 防音工事