![]()

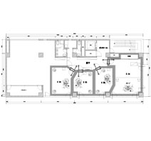
相模大野で古くからミュージックスクールグルーヴを開校されておりその拡張計画にて、新たにスタジオを4スタジオ新築いたしました。
3スタジオはバンド用のリハ-サルスタジオです。
もうひとつのスタジオは、27畳の大きなスタジオでゲネプロ用として、また、舞台照明もありミニライブも可能なスタジオとしています。
料金も安く、スタジオ料金並みの費用でライブが出来、もっと音楽を楽しむ人が増えるようにと、オーナーの思いです。
オーナーの岩田さんがプロのドラマーなので、ドラムの鳴りだけはきれいになるよう気を使いました。
[キーワード] :-